PROJETS
L’EQUIPE
CONTACT
Menu
Close
PROJETS
L’EQUIPE
CONTACT
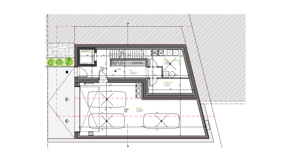
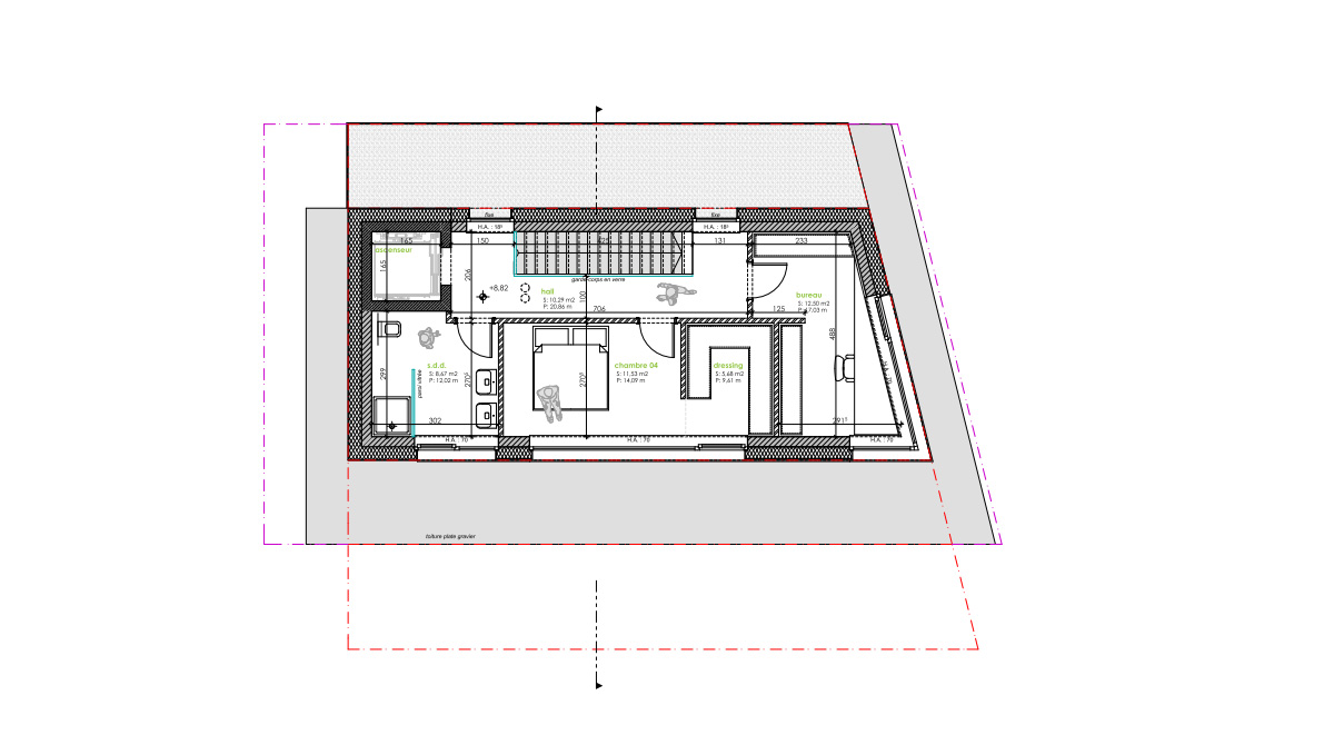
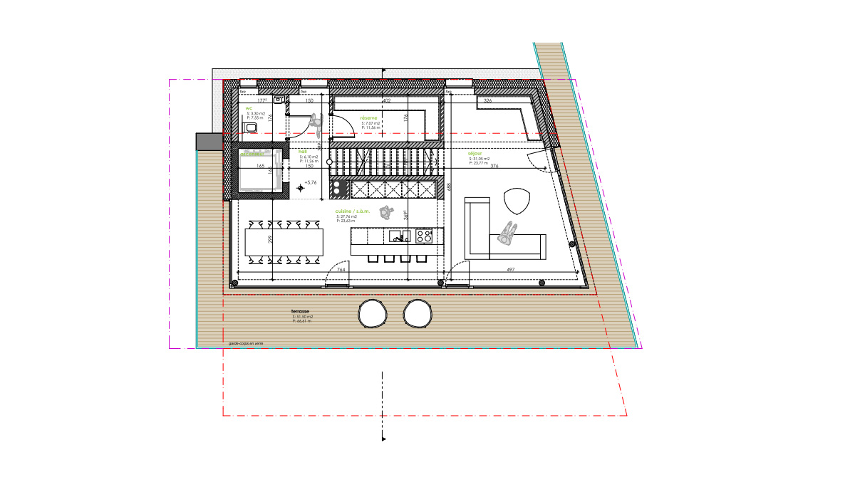
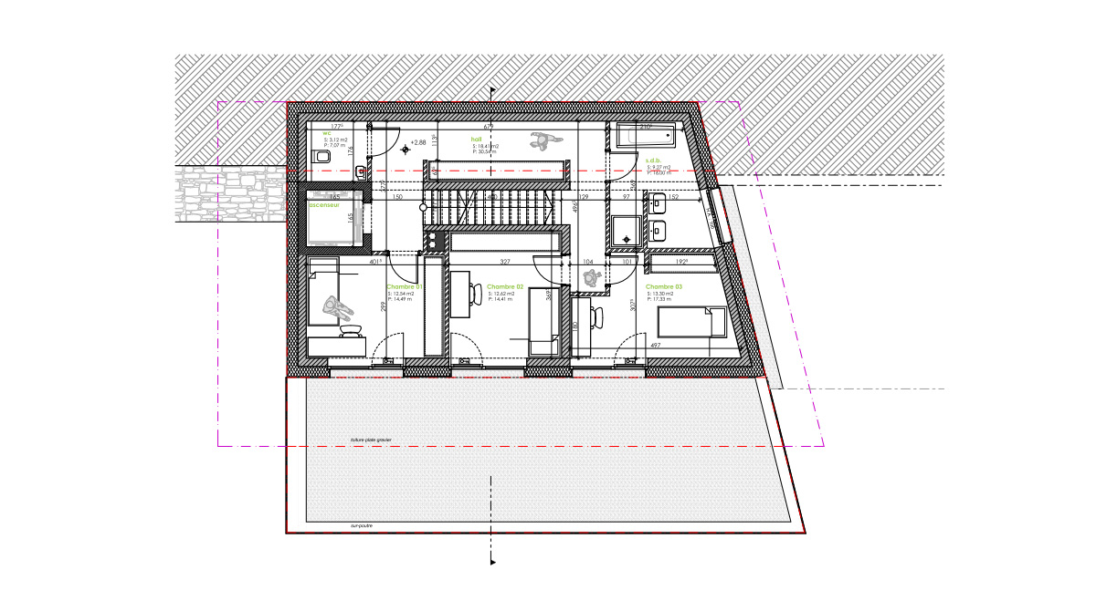
Maison unifamiliale
STADE :
PROJET EN ETUDE
LIEU :
LUXEMBOURG (LU)