PROJETS
L’EQUIPE
JOBS
CONTACT
Menu
Close
PROJETS
L’EQUIPE
JOBS
CONTACT
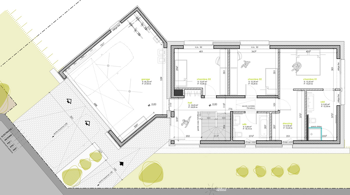
Maison unifamiliale
STADE :
PROJET EN ETUDE
LIEU :
WARKEN (LU)